Frazionamento caso G(3) come da corso pregeo

Buonasera , spiego la situazione , devo eseguire un frazionamento al catasto terreni per corrispondenza con il foglio dell’urbano( Fabbricato unico con due numeri di particella ), folgio di mappa del catasto terrreni non aggiornato (riporta solo un numero di paticella e non riporta le dividenti) sul foglio del catasto fabbricati esiste l’ immobile e’ separato da una dividente che taglia sia il fabbricato che il lotto in due , dove ogni lotto ha il suo numero di particella (una 536 e l’altra 1194 ),le unità immobiliari sono cosi ceniste con due numeri distinti anche al fabbricati , inoltre e’ sta fatta una divisione che riporta tali partcielle in CONCLUSIONE la mia Variazione e’ propedeutica a staccare una porzione di fabbricato con corte, pero’ con la stessa con tipologia costruttiva, (e’ non diversa) lo presento come caso G , e il ctasto capirà quello che sto facendo ?

Leggo foto per migliore conprensione

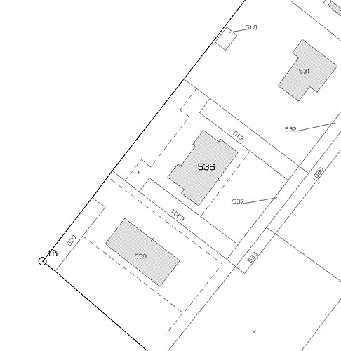
ESTRATTO DI MAPPA FOGLIO CATASTO FABBRICATI

ESTRATTO DI MAPPA ATTUALE

EDM ATTUALE.tif (123,6 KB)

EDM ATTUALE.tif (123,6 KB)

La mappa ufficiale è quella del C.T. per cui se vuoi fare la corrispondenza T/F devi adattare i dati dell’urbano a quelli della mappa (fatto salvo la presenza di un vecchio frazionamento al CT non introdotto in mappa e richiamato in atto notarile).

In ogni caso leggendo gli atti di proprietà dovresti individuare le parti comuni e se il sedime dell’intero fabbricato è comune, allora la mappa del CT è corretta.

Buonasera Carlo, nell’atto di divisione non viene richiamato nessun tipo di frazionamento cosi come non viene riportato nella visura storica catastale, ma l’atto rispecchia fedelemente la situazuione riportata sul foglio del catasto urbano . qunidi alla luce di cio’ secondo te in quale casistica ricado quella che avevo menzionato precedentemente ? anche se poi le caratterisitche costruttive sono identiche .

Ma negli atti si fa riferimento solo ai dati del CF oppure anche a quelli del CT? (che sono tra loro incongruenti….)

Comunque dubito fortemente che il Catasto accetti il frazionamento al CT con il caso “G”, in quanto trattasi di bifamiliare classica. Proverei con una istanza presso il Catasto, dal momento che non c’è la correlazione T-F, per vedere come risolve la situazione (tieni presente che potrebbe complicarla maggiormente…).

Personalmente, se l’atto non è chiaro, andrei dal notaio che ha stipulato per chiedere lumi.

Buongiorno , negli atti si fa’ riferimento solo al fabbricati , in merito all’istnaza un tecnico mi disse in tempi non sospetti di procederree coni il pregeo senza pero’ darmi una soluzione concreta