Buongiorno,
sono a chiedere cortesemente dei consigli dovendo precedere ad un frazionamento in previsione dell’ultimo incontro della mediazione, previsto agli inizi di giugno, che sancirà l’accordo.
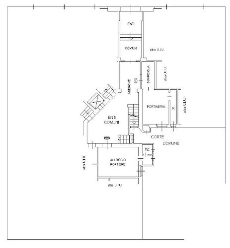
La U.I.U. da dividere, costituita da una guardiola con cucina + una stanza con WC separate fisicamente, attualmente censita come BCC, è stata motivo di contenzioso e oggetto di rivendica da parte di tre condomini, eredi dell’unico proprietario dell’intero fabbricato di un tempo.
Le parti hanno comunque raggiunto un accordo extragiudiziale secondo il quale:
- al Condominio rimarrà, sempre come BCC, la guardiola con vani accessori (cucina in disuso) [2,0 vani]
- ai tre eredi la Stanza con WC in partita ordinaria. [1,5 vani]
Poiché da unità in partita speciale (BCNC o BCC) possono derivare solo u.i.u. in partita speciale (BCNC o BCC), avrei pensato di procedere con Docfa di “frazionamento per trasferimento di diritto” sopprimendo l’attuale BCC in cat A/4 e costituendo due nuovi BCC, sempre in categoria A/4 con la somma delle consistenze e delle rendite uguale a quella dell’unità soppressa, motivando in rel. tec. la procedura in quanto propedeutico alla mediazione.
Una volta trascritto l’accordo sarà possibile richiedere all’agenzia (con istanza o voltura?) l’intestazione del BCC a tre eredi.
Il Docfa di cui sopra, che sconterà 140€ di Tributi, impone l’aggiornamento sia dell’EP sia dell’Elenco Subalterni. Tuttavia una volta trascritto l’accordo in Conservatoria e ottenuta la Voltura del BCC in capo ai 3 eredi, che di fatto determina il passaggio della Stanza con WC a Partita Ordinaria, sarebbe necessario aggiornare nuovamente la descrizione di questa unità nell’Elenco Subalterni, mentre rimarrebbe invariato l’EP.
Per aggiornare la sola descrizione nell’elenco subalterni dell’unità, procederei come da vademecum docfa nazionale al parag 2.3.1.5 a pag 63 con causale in ALTRE - MODIFICA DESCRIZIONE ELENCO SUB.
La presentazione di quest’ultimo Docfa richiede il pagamento di ulteriori 70€ Tributi trattandosi di una unità oppure è esente per qualche motivo?
Le mie ipotesi sono fondate/corrette oppure conviene operare altrimenti?
Veramente grato a chi vorrà essere d’aiuto.
Saluti
