Ricostruzione frazionamento post 2/88 che non chiude su mappa di primo impianto

Buonasera,
mi è capitata questa situazione (non so se sia già stato trattato l’argomento, ho provato a cercare nel forum ma non ho trovato riferimenti).
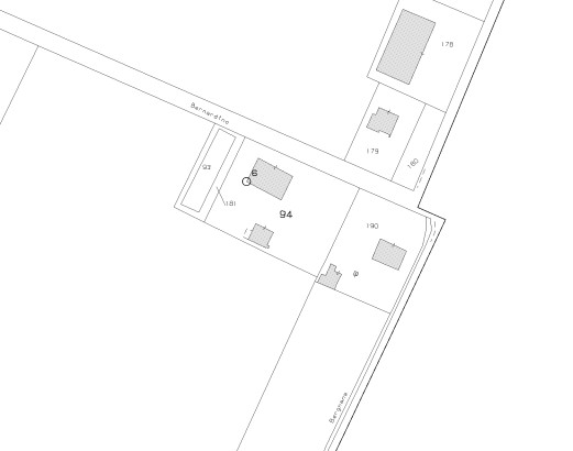
Sto effettuando un riconfinamento di un lotto in parte da mappa di primo impianto e in parte da un frazionamento presentato nel 2006. Il frazionamento del 2006 praticamente definiva due nuove linee, una che divideva la particella d’impianto da nord a sud e una che doveva rettificare la stessa particella di primo impianto da ovest a est. Il mio problema è proprio su quest’ultima linea che non si congiunge alla ricostruzione della particella d’impianto (lasciando un “buco”) come invece è stato definito con l’aggiornamento grafico della mappa.
Allego mappa attuale e ricostruzione impianto+frazionamento.

Vorrei capire come poter agire per riconfinare in maniera corretta e coerente.
Buona serata.


Ciao Alessandro e benvenuto sul forum (qui ci diamo tutti del tu, ok?).

Per darti un parere concreto, servono ulteriori informazioni, te le chiedo qui.

  1. Da cosa nasce l’incarico, c’è una controversia tra i rispettivi proprietari circa un’eventuale sconfinamento o si tratta di un’azione unilaterale del proprietario della particella 94?

  2. Sul posto i confini della particella 94, sia quelli originiari d’impianto che quelli generati dal frazionamento 2006 (incluso il “buco”) sono materializzati? Se lo sono, la materializzazione sul “buco” è presente fin dal 2006?

  3. Vedo che hai sovrapposto il frazionamento 2006 sulla mappa d’impianto, ma come lo hai ricostruito? I punti dai quali il tecnico del 2006 ha sviluppato il frazionamento sono materializzati sul posto? Oppure hai ricostruito il frazionamento sulla mappa d’impianto stessa?

Se rispondi a queste domande e se riesci a postare la grafica del frazionamento (cancellando ovviamente i dati sensibili), potrò darti maggiori indicazioni.

Ciao Gianni,
intanto grazie mille per la velocissima risposta. Rispondo alle tue domande.

  1. L’incarico nasce proprio per un azione unilaterale del proprietario della particella 94, casualmente in fase di rilievo ho incontrato anche la proprietà limitrofa che semplicemente mi ha chiesto se rimaneva o meno la cavedagna di passaggio al campo coltivato a sud della particella 94. Dai toni della conversazione ho dedotto non ci fosse alcuna controversia fra le parti.
  2. Sul posto sono materializzate solo due recinzioni e due fossi, lato nord verso la strada e lato est verso abitazione di altra proprietà. Sul lato sud e sul lato ovest non c’è nessun confine fisico se non appunto una cavedagna di passaggio
  3. I passaggi della ricostruzione del rilievo sono stati questi: ho rilevato più fabbricati possibili vicini d’impianto, i pf e alcuni spigoli di fabbricato utilizzati dal tecnico per redigere il frazionamento, non ci sono picchetti o riferimenti in loco di nessun tipo. A questo punto ho utilizzato Cormap per ricostruire parametricamente la mappa d’impianto su due fogli limitrofi con un vettore di scarto medio di 27cm circa. Per il frazionamento ho utilizzato geocat e ho fatto una rototraslazione ai minimi quadrati fra il mio rilievo e il rilievo di frazionamento ottenendo buoni risultati ( scarti sui 3 cm ). Ho poi riportato tutto su geocat in modo da poter sovrapporre impianto e frazionamento. Il frazionamento l’ho ricevuto direttamente a seguito di richiesta su sister e quindi ho ricevuto esclusivamente il libretto, ti posso allego una stampa della grafica di rilievo.

Grazie mille e buona giornata.
Frazionamento.pdf (11,2 KB)

Sul lato Sud come si colloca rispetto alla cavedagna il prolungamento della dividente 204-203 del frazionamento?

Ti chiedo questo perché, da quanto scrivi, mi sembra di capire che la cavedagna costituisca il confine di fatto tra le due proprietà (da capire se in mezzeria o tutta interna ad una delle due), al che non dovresti far altro che sancire questo confine.

Purtroppo la cavedagna non l’ho rilevata ( il vicino l’ho incontrato in altro campo che stava lavorando e lui mi aveva visto da lontano e mi ha fermato in un secondo momento ). Mi consigli di fare due battute della cavedagna? Se però prolungo la linea 203-204 arrivo ad avere una differenza di 3,5 mt rispetto alla linea di primo impianto sul punto 201 di congiunzione con la linea nord-sud.
Un dettaglio che mi sono scordato di scriverti prima è che il punto 204 cade all’interno della mezzeria del fosso che divide le proprietà abitative e a 30 cm circa dalla fine del fosso stesso.
Il problema rimane appunto il prolungamento della linea stessa. Oltretutto se congiungo il punto 204 al punto 201 la linea mi passa molto vicino a due alberi (punti 135 e 136 che ho rilevato ma sono distanti dalla cavedagna ).

Grazie.

Assolutamente sì.

Sì, questo si evince anche dalla grafica del frazionamento che hai postato:

Sarebbe quindi da indagare come mai da quel frazionamento il Catasto ha invece fatto coincidere il prolungamento della linea 204-203 con quella originaria d’impianto. Dal frazionamento non riesci a capirlo?

In effetti i due alberi potrebbero costituire il confine, il tuo committente cosa dice in merito, lui è proprietario da sempre o ha acquisito quel lotto solo dopo il 2006?

Procedo a fare le battute della cavedagna e poi vedo come cade.

Purtroppo dal frazionamento non ci sono elementi che possano far intendere le intenzioni della proprietà o del tecnico redattore. Onestamente, se non ricordo male, nel 2006 non eravamo ancora noi tecnici a redigere la proposta di inserimento in mappa ma la faceva direttamente il catasto in fase di approvazione ma non vorrei sbagliare ( si è iniziato nel 2009 a fare la proposta con gli auto allestiti? vado a memoria). Ti allego il libretto delle misure che ho ricevuto dove i punti delle dividenti sono definiti “PV NUOVA DIVIDENTE” e in relazione non c’è nulla di specifico.

La mia committenza ha acquistato nel 2025 e nel mentre ci sono stati altri due passaggi di proprietà quindi diventa un po’ complesso ricostruire la storia o le intenzioni di chi frazionava.

Libretto.pdf (3,5 MB)

Sì, ti conviene rilevare la cavedagna visto che il confinante faceva riferimento proprio a quella, mi sembra, temendo di non poterne più usufruire.

E sì, la Proposta di Aggiornamento è stata posta a carico dei Tecnici sicuramente dopo il 2006.

Dati i vari passaggi di proprietà che dici, mi sembra anche di capire che l’unico che abbia cognizione di causa circa la posizione del confine “di fatto” nel tempo sia proprio il confinante. Pertanto, se ti sembra una persona ragionevole e senza mire “espansionistiche” potresti anche convocarlo, unitamente al tuo committente per vedere se i due possono concordare il confine. Se così, potrai poi redigere un verbale di accordo e, sempre se i due sono d’accordo e la linea non corrispondesse a quella catastale attuale, anche agli atti necessari per sancire il nuovo confine sia catastalmente che giuridicamente.

Prima di procedere in tal senso, ti suggerisco di ricostruire la linea catastale attuale sia pur dalla wegis che sappiamo essere degradata di precisione metrica. In pratica, devi agire come se il frazionamento fosse andato perduto. Ti riporto qui le slide del prossimo corso Il prelievo delle coordinate sulle mappe d’impianto (gratuite) dell’AdE che terremo su www.corsigeometri.it in ottobre. Riguardano la ricostruzione da mappa di visura, ma la logica è la stessa.

geom. Gianni Rossi
cell. 3202896417
Email: [email protected]
www.topgeometri.it
www.corsigeometri.it

RICOSTRUZIONE STORICA
Provvedimento del 23/02/2006 - Agenzia del Territorio
Approvazione delle nuove specifiche tecniche e della procedura Pregeo 9 per la predisposizione degli atti di aggiornamento geometrico, di cui all’articolo 8 della legge 1 ottobre 1969, n. 679, ed agli articoli 5 e 7 del decreto del Presidente della Repubblica 26 ottobre 1972, n. 650.
Pubblicato in Gazzetta Ufficiale n. 50 del 1 marzo 2006

Articolo 2
1. Gli atti di aggiornamento geometrico di cui all’art. 1 possono essere presentati in conformità alle specifiche tecniche e alla procedura di cui al medesimo articolo, a partire dal giorno successivo alla data della pubblicazione del presente provvedimento nella Gazzetta Ufficiale della Repubblica italiana.
2. Gli atti di aggiornamento geometrico di cui all’art. 1 devono essere presentati in conformità alle specifiche tecniche e alla procedura di cui al medesimo articolo a far data dal 1 gennaio 2007.

Circolare n° 2 del 09/03/2006.pdf
Procedura PREGEO 9 e Nuovi Modelli Informatizzati

3 Decorrenza
A partire dal 2 marzo 2006, giorno successivo a quello della pubblicazione nella Gazzetta Ufficiale della Repubblica Italiana del Provvedimento 23 febbraio 2006, gli atti di aggiornamento cartografico possono essere presentati, in via facoltativa, agli Uffici dell’Agenzia del Territorio utilizzando i nuovi modelli informatizzati, compilati attraverso la procedura Pregeo 9 e con la stessa stampati. Pertanto, per gli atti così predisposti, gli elaborati prodotti a stampa sostituiscono i modelli cartacei attualmente in uso per la presentazione degli atti di aggiornamento geometrico (mod. 51 modif., mod. 51 FTP, mod. 3SPC), che non dovranno essere più allegati.
I suddetti modelli cartacei, invece, continuano ad essere utilizzati qualora il professionista opti per la presentazione con le modalità di cui alla procedura Pregeo 8.
La procedura Pregeo 9 è scaricabile dal seguente indirizzo web:
http://www.agenziaterritorio.gov.it/software/pregeo/pregeo_v9/pregeo_download.htm
corrispondente al sito internet dell’Agenzia dedicato ai professionisti.
A partire dal 1° gennaio 2007 gli atti di aggiornamento geometrico devono essere predisposti esclusivamente sui nuovi modelli informatizzati, conformi alle specifiche tecniche allegate al provvedimento del Direttore dell’Agenzia del 23.02.2006, e pertanto dalla suddetta data non potranno essere più utilizzati i tradizionali modelli cartacei.

Circolare n° 1 del 15/01/2007.pdf
Procedura Pregeo 9 – Ulteriori direttive

Nota n° 19119 del 09/03/2006
Attivazione Pregeo 9

Nota n° 34902 del 15/05/2006
Attivazione Pregeo 9 - Ulteriori chiarimenti operativi

Ciao Alberto,
e grazie come sempre per le tue dettagliate ricerche documentali.
Riesci per caso a risalire alla data in cui è entrata in vigore la Proposta di Aggiornamento a carico dei professionisti?

Come già scritto non svolgo attività nell’ambito Catasto Terreni
Riesco a capire meglio il Catasto Fabbricati (penso meno complicato)

Ho difficoltà a comprendere esattamente cosa si intenda con
Proposta di Aggiornamento a carico dei professionisti
(intendo nell’ambito PreGeo, per DoCFa altra storia)

Ho inteso presentazione degli atti di aggiornamento tramite software
Per un po’ di tempo una fase intermedia con atti su supporto cartaceo
Tra le versioni 8 e 9 di PreGeo

Più sopra ho riportato alcuni link per gli anni 2006/2007
Particolari date sono riportate
nel Provvedimento del 23/02/2006 - Agenzia del Territorio
nella Circolare n° 2 del 09/03/2006.pdf
e nella Circolare n° 1 del 15/01/2007.pdf

Chiarimanti operativi
Nota n° 19119 del 09/03/2006 + Nota n° 34902 del 15/05/2006

Conoscevo solo una parte della storia del software PreGeo
Ricordavo vagamente la versione 7.52
(letto su libro Maggioli oppure Flaccovio)
Qualcosa nella rete internet si trova per la versione 7.52
PREGEO vers. 7.52 del 13-12-1999

Ma prima cosa c’era ?
Correva l’anno : La storia di Pregeo

Su mio PC ho recuperato bozza di ricerca su file DOC
Storia di Pregeo.doc (15,5 KB)

Segnalo in particolare il seguente link
Norme e Circolari Catasto Terreni

Di norma nelle circolari sono riportati i riferimenti normativi

Prima del versione 6.53 di PreGeo nulla conosco
(Attivazione della procedura Pregeo in rete - 13/02/1992 ?)
(la data appare in contrasto con Circolare n° 2 del 13/01/1992)

Segue fonte di quella data (13/02/1992)
Accatastamento e riaccatastamento di un immobile
Monografie Edil-lab - Edilizia e Territorio
Edizioni Graffiti srl - Napoli. febbraio 2017
tabella ELENCO CIRCOLARI

Le procedure operative sono state trasmesse più tardi
Nei primi anni delle mie ricerche ho raccolto un bel po’ di procedure
In allora alcune procedure sono state difficili da rintracciare
Probabilmente perchè per uso interno degli Uffici
Ricordo vagamente poche schermate di un software per uso interno

Ciao,
grazie mille per le preziose informazioni, a memoria ricordo che c’è stato un periodo di transizione dove noi tecnici redigevamo la proposta che veniva poi avvallata dall’ufficio, ma sto andando a memoria e ricordo che il periodo era proprio a cavallo del 2006.
Rispondo solo ora perché sto provando a rintracciare i proprietari che hanno acquistato a seguito del frazionamento del 2006, erano una società di costruzioni/immobiliare che poi ha venduto la particella ad un notaio che probabilmente aveva delle quote nella società stessa. La speranza è di poter parlare con questa persona (che aveva redatto l’atto di compravendita post frazionamento) e magari avere informazioni che possano aiutarmi (oltre al vostro aiuto che è veramente prezioso) a sbrogliare il problema.

Grazie e buona serata.

In base a quanto sono riuscito rapidamente a leggere
periodo di transizione dal 02/03/2006 al 31/12/2006
Come scritto passaggio da PreGeo 8 a PreGeo 9

Dettagli per PreGeo 9 sono riportati nei due chiarimenti operativi
A parte le procedure operative, per esempio . . .
Procedura Operativa n° 113 del 31/05/2007

Prima e dopo da approfondire . . .

Alcuni estratti da Procedura Operativa n° 113 del 31/05/2007
1. Scopo
2. Applicabilità

3. Riferimenti normativi
Circolare n. 4/2005 della Direzione Centrale Cartografia, Catasto e
Pubblicità Immobiliare “Attivazione del servizio di trasmissione telematica
del modello unico informatico catastale relativo alle dichiarazioni per
l’accertamento delle unità immobiliari urbane di nuova costruzione e alle
dichiarazioni di variazione dello stato, consistenza e destinazione delle
unità immobiliari urbane censite (DOCFA) – Avvio del sistema
sperimentale”.

Circolare n. 2/2007 della Direzione Centrale Cartografia, Catasto e
Pubblicità Immobiliare “Attivazione del servizio di trasmissione telematica
del modello unico informatico catastale relativo agli atti di aggiornamento
del Catasto Terreni (PREGEO) – Avvio del servizio in forma sperimentale”.

5.2. Documento informatico di aggiornamento
5.3 Atti di aggiornamento geometrico
** che possono essere presentati in via telematica**

6. Modalità operative
7. Archiviazione e conservazione degli atti
8. Riscontro dell’avvenuto deposito ed invio ai Comuni

Nota particolare
Diagrammi di flusso non salvati bene (pagine 21 e 22)
Forse nella rete internet potrebbe esserci altra versione delle stesso file

Versione migliore della P.O. 113/2007

Circolare n° 2 del 15/01/2007
Attivazione del servizio di trasmissione telematica del modello unico informatico catastale relativo agli atti di aggiornamento del Catasto Terreni (PREGEO) – Avvio del servizio in forma sperimentale.

2 Aree geografiche interessate dal servizio e decorrenza dell’attivazione
Il Provvedimento del Direttore dell’Agenzia del 22.12.2006 ha previsto l’attivazione progressiva del servizio, a partire dal giorno 15.01.2007 per la trasmissione degli atti da presentare agli Uffici provinciali di Milano, Brescia, Padova, Biella, Ravenna, Bologna, Siena, Reggio Calabria, Cuneo e Modena e, a partire dal giorno 15.02.2007, per la trasmissione degli atti da presentare agli Uffici provinciali di Catania, Ascoli Piceno, Lecce, Viterbo, Campobasso, Cagliari, Genova, Potenza e Udine. . . .

Ciao,
chiedo scusa nel ritardo a fornire informazioni ma sono stato in ferie a settembre, nel periodo di rientro ho consultato l’archivio notarile per controllare i vari rogiti e vedere se ci fossero informazioni riguardanti eventuali confini ma purtroppo non ho trovato nulla ( paradossalmente in passato erano molto più scrupolosi e mi è capitato di trovare atti degli inizi del '900 con informazioni dettagliate sulle posizioni dei confini come da frazionamenti allegati ).
Ho proceduto a ricostruire la mappa attuale come suggerito da Giuseppe e il risultato equivale circa al prolungamento della mappa d’impianto sul confine esistente ( nell’immagine che allego linea rossa più a nord ).
Per scrupolo ho rielaborato il frazionamento e ricontrollato gli scarti sui punti omologhi e tornano con scarti minimi ( allego foto ).
Come consigliato ho rilevato anceh la cavedagna che cade completamente a sud rispetto sia alla linea di mappa d’impianto che alla linea di mappa attuale, però rispetto al frazionamento i punti 203 e 204 la tagliano in parte.

Alla fine ho ragionato in questo modo e vi chiedo consiglio, pensavo di ricostruire il confine come da linea verde in quanto parte dal termine della mappa d’impianto e si congiunge al termine del frazionamento post circolare nel punto 204 ( che cade fra l’altro al centro del fosso di divisione con la particella 190 e coincide quasi perfettamente alla mappa di primo impianto ). Diciamo che è un compromesso che dovrebbe accontentare tutti ( la cavedagna rimane sotto e gli alberi sopra questa linea ), in fase di picchettamento faccio in modo che ci siano entrambi e preparo un verbale di riconfinamento anche se, di fatto, fisicamente si dovrebbe fare un frazionamento e andar dal notaio per sistemare la cosa, ma come ipotesi la vedo complicata.

Allego immagini della ricostruzione su mappa attuale, impianto e risultati della ricostruzione del frazionamento.
Grazie mille



La circolare dell’ex Agenzia del Territorio che da dato il via alla proposta di aggiornamento tramite pregeo è la numero 3 del 16/10/2009 (oggi compie gli anni :slight_smile: ).

Questa circolare ha stabilito le procedure per l’approvazione automatica degli atti di aggiornamento del Catasto Terreni, con il contestuale aggiornamento della mappa e dell’archivio censuario attraverso la procedura Pregeo 10.

Poi la circolare 1 del 28/05/2010 ha integrato la precedente (3/2009) specificando modalità e tempi per il rilascio degli estratti di mappa digitali e per la gestione degli atti di aggiornamento.

Saluti

Ciao Alessandro.

Chi sarebbe Giuseppe?

L’ipotesi di definizione del confine che hai descritto mi sembra ragionevole, poi sarà da capire se viene accettata di buon grado dai due proprietari perché se così, come dicevo, va bene di sicuro. Poi, certo, sarebbe da sanare sia la situazione catastale che giuridica, ma questo ha ovviamente dei costi non banali. Tuttavia, la sottoscrizione di un verbale di accordo con allegata planimetria che indica le misure del confine è comunque un ottimo caposaldo.

Ciao Gianni,
con Giuseppe intendevo te Gianni ( il consiglio è stato tuo ) ma ho avuto un classico lapsus freudiano in quanto Giuseppe è uno dei nomi della proprietà, pardon.

Per il momento vi ringrazio tutti per i preziosi consigli e per il tempo che mi avete dedicato.
Buona pomeriggio e buon lavoro a tutti.